
Prenájom bytu 1+1 • 29 m²Václavská, Brno - Staré Brno, Jihomoravský kraj
Václavská, Brno - Staré Brno, Jihomoravský krajMHD 2 minúty pešo • Vybavené • ParkovanieNabízíme k podnájmu jednotku R1.205 o celkové výměře 29,6 m2, která je k dispozici od 1.1.2026. K dispozici je ve stejném komplexu několik jednotek ve velikosti 1+kk, 2+kk a 2+1 pro 2 až 4 osoby.
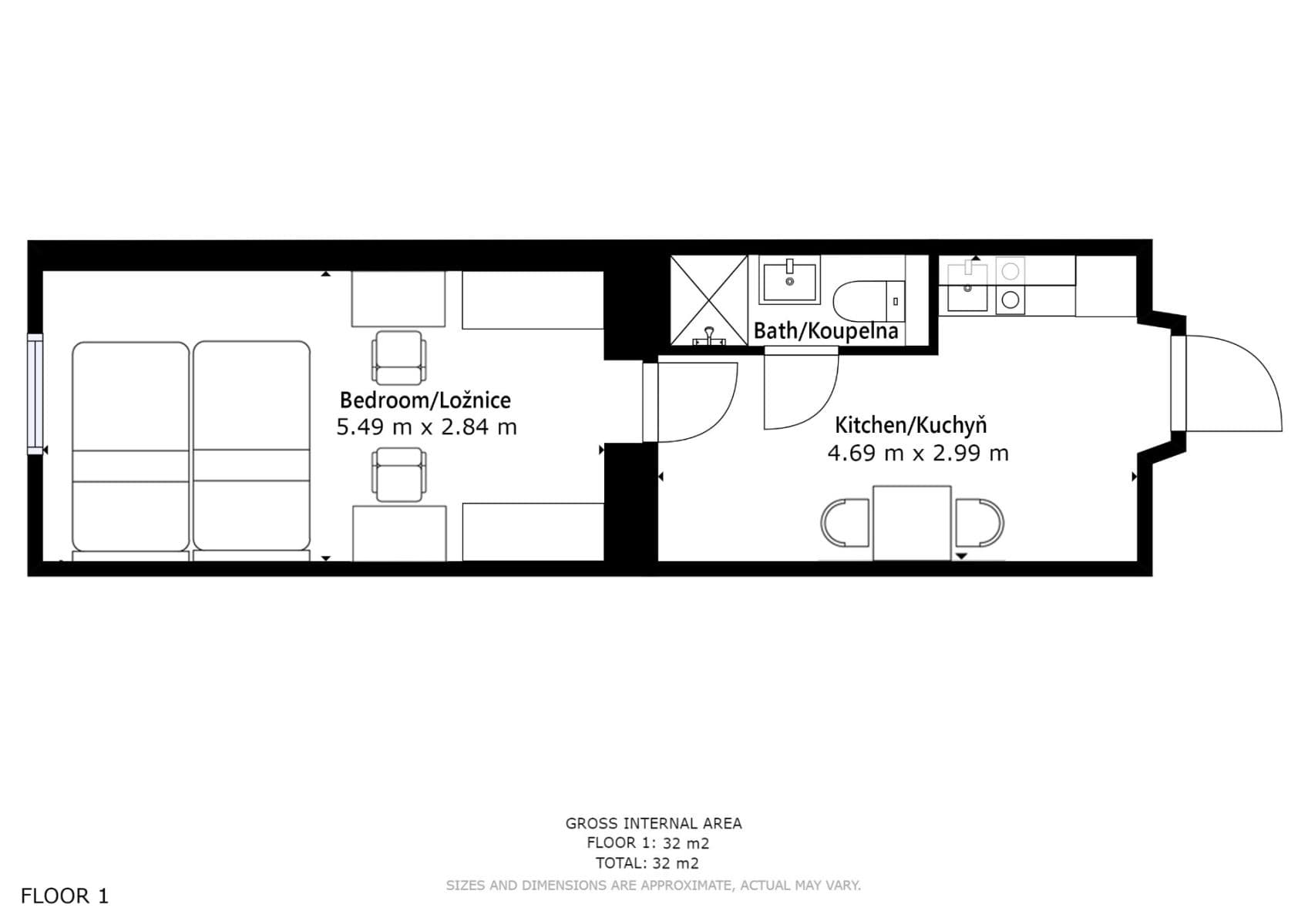
Jedná se o podnájem kompletně vybavené jednotky o dispozici 1+1 v nově zrekonstruovaném domě. Součástí vybavení kuchyně je plně zařízený kuchyňský kout, včetně lednice, dvou plotýnkové sklokeramické desky, digestoře, dřezu, mikrovlnné trouby a varné konvice. Jednotka je vybavena dvěma pracovními stoly s židlemi, dvěma pohodlnými postelemi a dostatečným prostorem na ukládání oblečení. Koupelna je také plně vybavená, a to sprchovým koutem, záchodem a umyvadlem se zrcadlem. K dispozici je příprava pro připojení vlastní pračky.
Benefity pro podnájemníky:
internetové připojení v jednotce k dispozici
společné prádelny, kde se nachází vždy pračky a sušičky (za poplatek)
zvýhodněná cena za parkování 1 390 Kč měsíčně
venkovní relax zóna vč. posezení, grilu, pingpongu
venkovní posilovna (zdarma) a vnitřní posilovna (placená)
vnitřní studovna s coworking prostorem
nemáme nevrlé sousedy
Jednotky se nachází v lukrativní oblasti v bezprostřední blízkosti centra Brna. Samotné centrum Brna je dostupné v pěší vzdálenosti. V těsné blízkosti se nachází jeden z největších dopravních uzlů v Brně – Mendlovo náměstí, které Vám zajistí bezproblémové spojení na brněnské univerzity. V okolí se nachází několik obchodů, restaurací, barů, posiloven a ostatních služeb.
O aktuální dostupnosti a podmínkách Vás budeme rádi informovat.
Rádi se s Vámi setkáme na osobní prohlídce.
We offer for sublease unit R1.205 with a total area of 29.6 m2, which is available from 1.1.2026. There are several units in the same complex in the size of 1+kk, 2+kk and 2+1 for 2 to 4 people.
This is a sublease of a fully equipped unit with a 1+1 layout in a newly renovated house. The kitchen equipment includes a fully equipped kitchenette, including a refrigerator, two-burner ceramic hob, extractor hood, sink, microwave oven and kettle. The unit is equipped with two work tables with chairs, two comfortable beds and sufficient space for storing clothes. The bathroom is also fully equipped, with a shower, toilet and sink with mirror. There is preparation for connecting your own washing machine.
Benefits for tenants:
internet connection available in the unit
shared laundry room, where there are always washing machines and dryers (for a fee)
discounted price for parking 1,390 CZK per month
outdoor relaxation area incl. seating, grill, ping pong
outdoor gym (free) and indoor gym (paid)
indoor study room with coworking space
we have no grumpy neighbors
The units are located in a lucrative area in the immediate vicinity of the center of Brno. The center of Brno itself is within walking distance. In close proximity is one of the largest transport hubs in Brno – Mendlovo náměstí, which will provide you with a seamless connection to Brno universities. There are several shops, restaurants, bars, gyms and other services in the area.
We will be happy to inform you about current availability and conditions.
We will be happy to meet you for a personal inspection.
Parametre nehnuteľnosti
| Dostupné od | 1. 1. 2026 |
|---|---|
| Výstavba budov | Tehla |
| Vybavené | Vybavené |
| Číslo inzerátu | 744797 |
| Umiestnenie | Tichá časť |
| Cena za jednotku | 479 CZK / m2 |
| Stav | Veľmi dobrý |
|---|---|
| Dispozícia | 1+1 |
| Poschodie | 2. poschodie z 4 |
| PENB | G - Mimoriadne nehospodárne |
| Úžitková plocha | 29 m² |
Čo táto nehnuteľnosť ponúka?
| Parkovanie |
| MHD 2 minúty pešo |
V okolí nehnuteľnosti nájdete
Stále hľadáte to pravé?
Nastavte si strážneho psa. Ponuky vybrané na mieru dostanete súhrnne 1× denne e-mailom. S Premium profilom máte po ruke rovno 5 strážcov a keď sa niečo objaví, informujú vás obratom.

















