
Prenájom kancelárie • 103 m² bez realitkyUruguayská, Praha - Vinohrady
Přímý majitel, developerská společnost REMCO s.r.o. nabízí k pronájmu kancelářské prostory v administrativní budově v Uruguayské ulici, Praha 2.
Ideální poloha blízko centra Prahy, 200m od stanice metra Nám. Míru a tramvajových zastávek.
Možnost pronájmu parkování v podzemní garáži.
Cena nájmu je 239,-Kč/m2 + poplatky za služby 119,-Kč/m2, topné náklady 20,-Kč/m2 a elektrická energie.
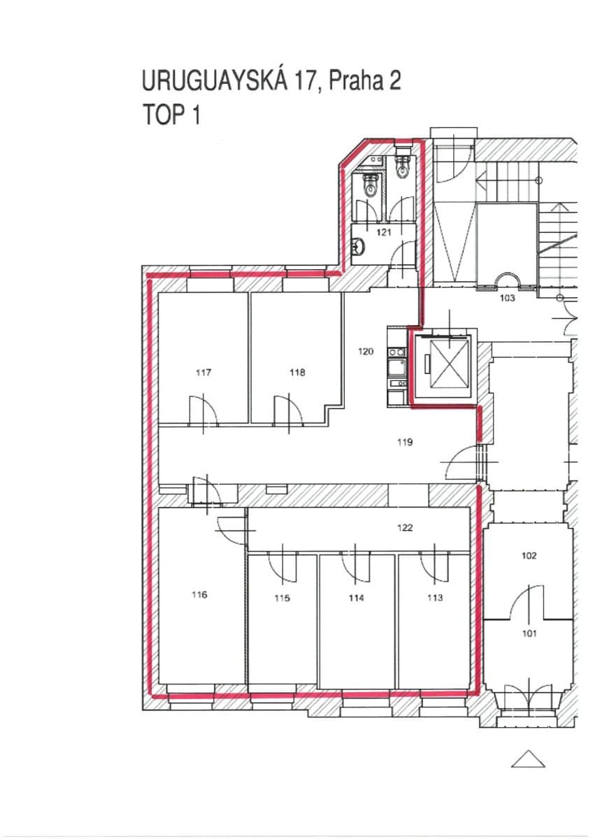
K dispozici je šest světlých, prostorných kanceláří o celkové výměře 102,82 m2. Kanceláře na nachází v 1NP objektu. Součástí prostor je vstupní hala s odděleným kuchyňským koutem, viz půdorys.
Prostory mají vlastní sociální zázemí, žaluzie a otevíratelná okna.
Elektrická energie se platí dle spotřeby (fakturace).
Prostory jsou volné od srpna, k pronájmu od září 2026.
Parametre nehnuteľnosti
| Dostupné od | 1. 5. 2024 |
|---|---|
| Konštrukcia budovy | Tehla |
| Poschodie | 1. poschodie z 5 |
| PENB | E - Nehospodárne |
| Plocha kancelárie | 103 m² |
| Stav | Dobrý |
|---|---|
| Vybavené | Nevybavené |
| Číslo inzerátu | 576148 |
| Umiestnenie | Tichá lokalita |
| Cena za jednotku | 239 CZK / m2 |
Čo táto nehnuteľnosť ponúka?
| Bezbariérový prístup | |
| Výťah | |
| MHD 1 minúta pešo |
| Garáž | |
| Parkovanie |
V okolí nehnuteľnosti nájdete
Stále hľadáte to pravé?
Nastavte si strážneho psa. Ponuky vybrané na mieru dostanete súhrnne 1× denne e-mailom. S Premium profilom máte po ruke rovno 5 strážcov a keď sa niečo objaví, informujú vás obratom.





