Prenájom kancelárie • 15 m² bez realitkyPuškinovo náměstí, Praha - Bubeneč
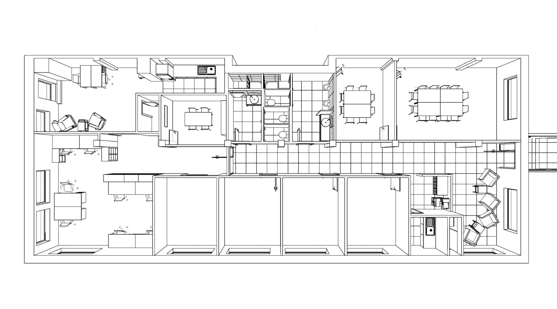
Máme krásné, nově zrekonstruované, tiché, světlé, čisté pracovní prostředí , úspěšně již čtvrtým rokem provozované jako coworking ARCHIHUB.CZ ve vnitrobloku na Puškinově náměstí na Praze 6, kousek od metra Hradčanská a Dejvická.
K dispozici aktuálně máme 1 samostatnou kancelář pro 3-4 osoby, může nebo nemusí být vybavena základním kancelářským nábytkem (pracovní stoly, židle, boxy, knihovna), výše měsíčního nájmu činní 17.000,- Kč.
Dále máme k dispozici 3 pracovní stoly v OpenSpace, které je koncipováno pro 8 osob, aktuálně je již 5 pracovních míst obsazeno projektanty a architekty, uvítáme dalšího milého kolegu k nám, cena za pracovní stůl je 7.000,- Kč / měsíčně.
Cena je konečná, zahrnuje veškeré poplatky a služby, DPH není uplatněno. V ceně u nás máte dobré kafe, čaj, vodu, připojení k internetu, wifi, síťové tiskárny, kancelářské potřeby, dvě kuchyňky, sprchy, plně vybavené zázemí a zajištěné úklidové služby.
Pro vaše týmové porady či schůzky s klienty můžete využít jednu ze tří zasedaček, a pokud jste třeba společenství vlastníků, družstvo, jazyková škola, či kroužek šití a hledáte větší prostory ať už přes den, ve večerních hodinách nebo o víkendech, můžete si je pronajmout samostatně od 700,- Kč / hod. bez DPH, které je v případě krátkodobých pronájmů uplatněno. Pokud u nás máte nájem svého stálého pracovního místa, je využití zasedacích místností v pronájmu již zahrnuto automaticky.
Svou rezervaci si můžete sjednat jednoduše online zde: archihub.reservanto.cz
Bezproblémové parkování přímo před kanceláří, máte možnost zaplatit si kartu pro modrou zónu na P6 nebo hradit stání přímo na náměstí. Své kolo, koloběžku nebo skůtr můžete bezpečně zaparkovat přímo v naší vstupní hale.
Mezi námi jsou architekti, projektanti, projektoví manažeři, právníci, makléři, grafici. Uvítáme další podnikavé a příjemné spolubydlící.
K nastěhování ihned, veškeré informace najdete na našich stránkách www.ARCHIHUB.cz. Prohlídky po domluvě na čísle těšíme se na vás.
We have a beautiful, newly renovated, quiet, bright, clean working environment, successfully operated for the fourth year as a coworking ARCHIHUB.CZ in the courtyard on Puškinovo náměstí in Prague 6, a short walk from the Hradčanská and Dejvická metro stations.
We currently have 2 separate offices available, each for 3-4 people, may or may not be equipped with basic office furniture (desks, chairs, boxes, library), the monthly rent is 17,000 CZK.
We also have 2 desks available in OpenSpace, which is designed for 8 people, the remaining 6 jobs are currently occupied by designers and architects, we would like to welcome another nice colleague to join us, the price for a desk is 7,000 CZK / month.
The price is final, includes all fees and services, VAT is not applied. The price includes good coffee, tea, water, internet connection, wifi, network printers, office supplies, two kitchenettes, showers, fully equipped facilities and cleaning services.
For your team meetings or meetings with clients, you can use one of the three meeting rooms, and if you are, for example, an association of owners, a cooperative, a language school, or a sewing club and are looking for larger spaces, whether during the day, in the evenings or on weekends, you can rent them separately from 700 CZK / hour excluding VAT, which is applied in the case of short-term rentals. If you rent your permanent workplace with us, the use of the meeting rooms is automatically included in the rent.
You can easily make your reservation online here: archihub.reservanto.cz
Problem-free parking right in front of the office, you have the option to pay for a blue zone card on P6 or pay for parking directly on the square. You can safely park your bike, scooter or moped right in our entrance hall.
Among us are architects, designers, project managers, lawyers, brokers, graphic designers. We welcome other enterprising and pleasant roommates.
Available to move in immediately, all information can be found on our website www.ARCHIHUB.cz. Tours by appointment at the number we look forward to seeing you.
Parametre nehnuteľnosti
| Dostupné od | 1. 4. 2025 |
|---|---|
| Dispozícia | Ostatné |
| Poschodie | 1. poschodie |
| Vlastníctvo | Osobné |
| Umiestnenie | Tichá lokalita |
| Cena za jednotku | 467 CZK / m2 |
| Konštrukcia budovy | Zmiešaná |
|---|---|
| Vybavené | Čiastočne |
| Číslo inzerátu | 553379 |
| PENB | C - Hospodárne |
| Plocha kancelárie | 15 m² |
Čo táto nehnuteľnosť ponúka?
| Bezbariérový prístup | |
| MHD 2 minúty pešo |
| Parkovanie | |
| Terasa 15 m² |
V okolí nehnuteľnosti nájdete
Stále hľadáte to pravé?
Nastavte si strážneho psa. Ponuky vybrané na mieru dostanete súhrnne 1× denne e-mailom. S Premium profilom máte po ruke rovno 5 strážcov a keď sa niečo objaví, informujú vás obratom.









