
Predaj bytu 2+kk • 60 m² bez realitkyŠtěpánská, Praha - Nové Město
Exkluzivní nabídka jedinečného bytu 2+kk, 60 m², Praha 1 – Nové Město, Štěpánská ulice
Nabízíme k prodeji výjimečný, plně zařízený byt o dispozici 2+kk s komorou a celkové podlahové ploše 60 m², situovaný ve 4. nadzemním podlaží reprezentativního domu v prestižní lokalitě Praha 1 – Nové Město, pouhé 3 minuty chůze od Václavského náměstí.
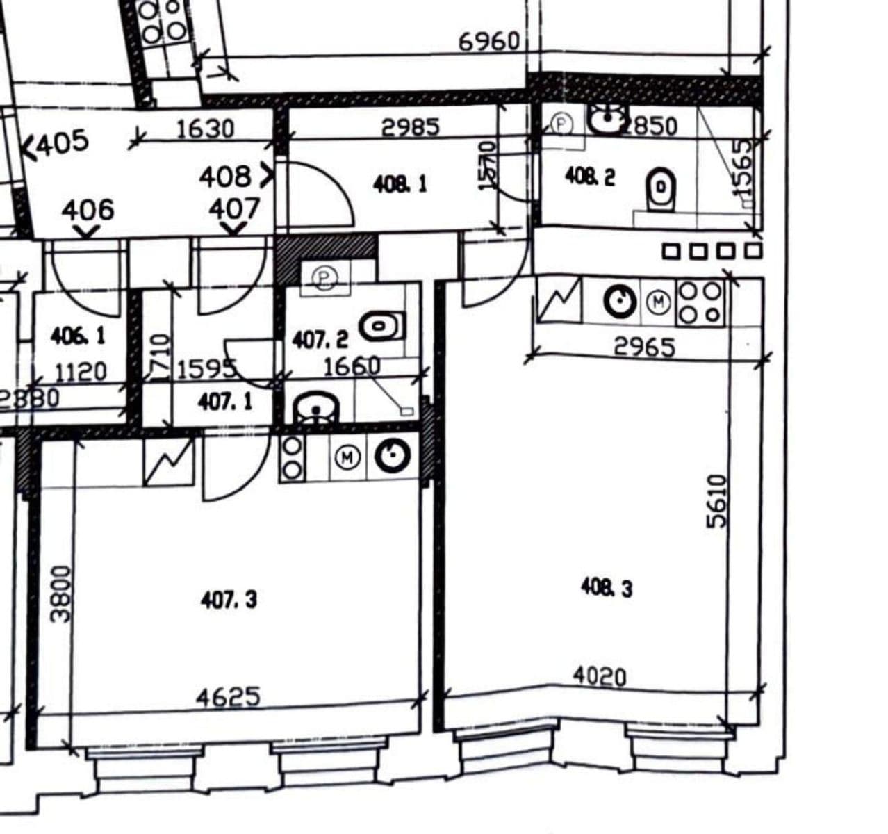
Tato nemovitost představuje ideální spojení centra města, komfortu a investičního potenciálu. Byt vznikl citlivým propojením dvou původních jednotek, čímž nabízí nadstandardní prostorové řešení a neobvyklý komfort v podobě dvou koupelen. Praktická komora vznikla úpravou původního vstupu, přičemž vstup do ní je veden z původní jednotky č. 408 (viz půdorys ve fotogalerii), což zvyšuje užitnou hodnotu bytu.
Byty o dispozici 2+kk se v této části centra neobjevují tak často, což z této nabídky dělá zajímavou příležitost jak pro vlastní bydlení, tak i z pohledu investice.
Interiér je kompletně vybaven a připraven k okamžitému užívání či dalšímu pronájmu. Moderní kuchyňská linka disponuje všemi spotřebiči, obytný prostor je zařízen s důrazem na funkčnost i estetiku. Dvě koupelny poskytují maximální pohodlí jak pro vlastní bydlení, tak pro nájemní využití.
Technické parametry:
– podlahová plocha: 60 m²
– dispozice: 2+kk + komora
– osobní vlastnictví
– orientace: jihovýchod
– 2 koupelny
– plně vybavený interiér
– ohřev vody: elektrický bojler
– vytápění: elektrické
– podlaží: 4. NP
Dům prošel kompletní rekonstrukcí v roce 2019, což přispívá k celkovému standardu a kvalitě bydlení.
Byt se nachází v jedné z nejžádanějších částí Prahy s kompletní občanskou vybaveností v bezprostředním okolí – restaurace, kavárny, obchody, služby i výborná dopravní dostupnost (metro, tramvaje). Lokalita zároveň nabízí klidné bydlení v docházkové vzdálenosti od historického centra a je vhodná i pro krátkodobé pronájmy.
Nemovitost je aktuálně pronajata do 10. 9. 2026, což z ní činí atraktivní investiční příležitost s okamžitým výnosem.
Prodej probíhá přímo od majitele. Samozřejmostí je kompletní právní servis zajištěný prodávajícím, díky čemuž je celý proces pro kupujícího maximálně komfortní, bezpečný a transparentní, bez jakéhokoliv tlaku ze strany realitních kanceláří. RK prosíme, aby nás nekontaktovaly.
Cena: 13 800 000 Kč
Pro více informací nebo domluvení prohlídky nás neváhejte kontaktovat.
Parametre nehnuteľnosti
| Dostupné od | 24. 4. 2026 |
|---|---|
| Konštrukcia budovy | Tehla |
| Vybavené | Vybavené |
| Číslo inzerátu | 1016204 |
| PENB | D - Menej hospodárne |
| Úžitková plocha | 60 m² |
| Stav | Veľmi dobrý |
|---|---|
| Dispozícia | 2+kk |
| Poschodie | 4. poschodie z 6 |
| Vlastníctvo | Osobné |
| Umiestnenie | Centrum mesta |
| Cena za jednotku | 230 000 CZK / m2 |
Vyberáte byt?
Majte istotu, že máte všetky dôležité informácie!
V okolí nehnuteľnosti nájdete
Stále hľadáte to pravé?
Nastavte si strážneho psa. Ponuky vybrané na mieru dostanete súhrnne 1× denne e-mailom. S Premium profilom máte po ruke rovno 5 strážcov a keď sa niečo objaví, informujú vás obratom.
















