Predaj bytu 4+1 • 94 m² bez realitkyStaroměstská, České Budějovice - České Budějovice 3, Jihočeský kraj
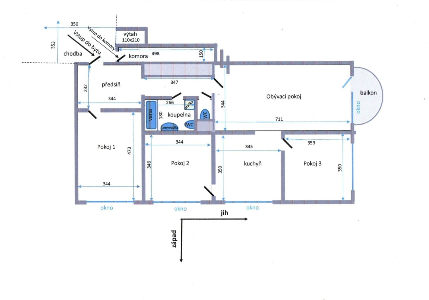
Nabízím k prodeji prostorný a světlý byt 4+1 o celkové ploše 94 m², který se nachází v panelovém domě. Nemovitost je ve velmi dobrém stavu a je částečně vybavená, takže si můžete zařídit interiér přesně podle svých představ. Dispozice bytu nabízí dostatek prostoru pro pohodlné rodinné bydlení a zároveň umožňuje flexibilní využití jednotlivých místností. Na podlaží jsou pouze 2 bytové jednotky s velkou chodbou a prostorným výtahem.
Byt se nachází v šestém nadpodlaží, je vybaven velkým výtahem a bezbariérovým přístupem, což ocení zejména starší obyvatelé či rodiny s malými dětmi. K domu bohužel parkování či garáž nenabízím, avšak v okolí domu jsou parkovací zóny určené pro místní obyvatele. Byt disponuje praktickým balkonem o ploše 3 m² a komorou vedle bytu o ploše 7.5 m² která poskytuje dostatek prostoru pro uskladnění osobních věcí. V přízemí domu je sklepní koje.
Byt má výhodnou polohu - do centra města 800m, nákupní centrum IGI 300m, pošta 300m, škola 400m, školka 200m, restaurace Perla do 100m.
Budova má energetický štítek kategorie C, což svědčí o relativně nízké energetické náročnosti a příznivých provozních nákladech. Nemovitost vlastním osobně, což zaručuje přímý a transparentní průběh celé transakce.
Pro další informace a domluvení prohlídky mě kontaktujte prostřednictvím zpráv na komunikační platformě.
Parametre nehnuteľnosti
| Dostupné od | 31. 5. 2026 |
|---|---|
| Konštrukcia budovy | Panel |
| Vybavené | Čiastočne |
| Číslo inzerátu | 1014969 |
| PENB | C - Hospodárne |
| Úžitková plocha | 94 m² |
| Stav | Veľmi dobrý |
|---|---|
| Dispozícia | 4+1 |
| Poschodie | Prízemie |
| Vlastníctvo | Osobné |
| Umiestnenie | Tichá lokalita |
| Cena za jednotku | 82 978,72 CZK / m2 |
Čo táto nehnuteľnosť ponúka?
| Balkón 3 m² | |
| Pivnica 9 m² | |
| MHD 2 minúty pešo |
| Bezbariérový prístup | |
| Výťah |
V okolí nehnuteľnosti nájdete
Stále hľadáte to pravé?
Nastavte si strážneho psa. Ponuky vybrané na mieru dostanete súhrnne 1× denne e-mailom. S Premium profilom máte po ruke rovno 5 strážcov a keď sa niečo objaví, informujú vás obratom.







