
Predaj pozemku • 973 m² bez realitkyTršice - Tršice, Olomoucký kraj
Tršice - Tršice, Olomoucký krajNabízíme k prodeji exkluzivní rohový stavební pozemek o výměře 973 m² s ovocnými stromy v žádané lokalitě Malostranské záhumenky v obci Tršice. Jedná se o jeden z posledních volných pozemků v této dokončené lokalitě s kompletní infrastrukturou.
Pozemek je zcela připraven k výstavbě. Je zde již zrealizovaná přístupová komunikace se sjezdem a k dispozici jsou přípojky vody, kanalizace a elektřiny. Po vyřízení povolení lze ihned zahájit stavbu bez dalších nákladných příprav.
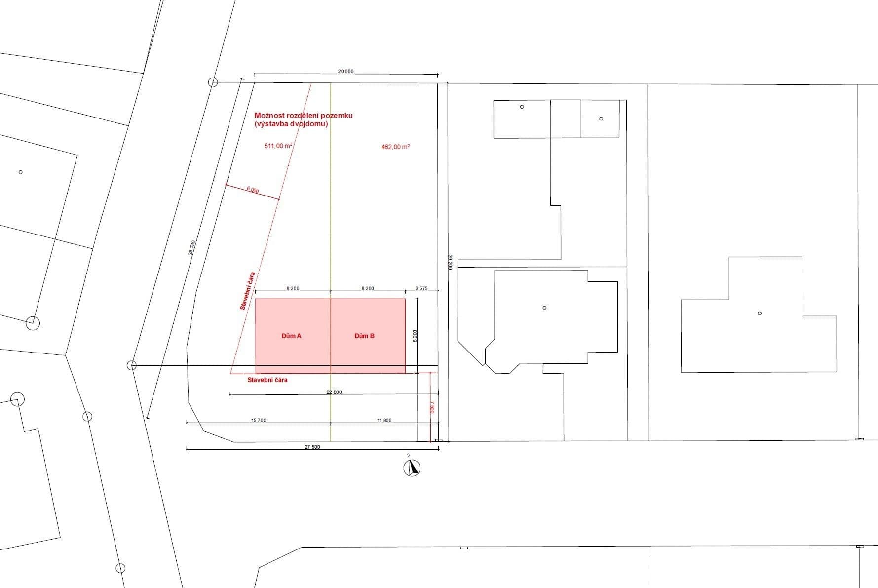
V místě stavební čáry má pozemek šířku 27,5 m a délku 39,2 m. Díky nadstandardní šířce je vhodný nejen pro výstavbu samostatně stojícího rodinného domu, ale i dvojdomu (příklad viz foto). Nabízí tedy zajímavou příležitost také z investičního pohledu.
Základní regulativy výstavby:
- max. 1,5 NP s obytným podkrovím
- šikmé střechy se sklonem 30°–43°
- celková výška max. 9,5 m nad terénem
Podrobné regulativy a územní studie jsou součástí fotodokumentace.
Tršice nabízejí velmi dobrou občanskou vybavenost – mateřskou i základní školu, zdravotní středisko, lékárnu, obchod i restauraci – a zároveň klidné bydlení v blízkosti přírody. Výborná dostupnost do Olomouce (cca 15 km / 20 min) a Přerova (cca 20 km / 25 min).
Cena je uvedena včetně právního servisu. Provizi neplatíte (přímý prodej). RK prosím nekontaktovat, děkujeme.
Parametre nehnuteľnosti
| Dostupné od | 4. 4. 2026 |
|---|---|
| Typ pozemku | Stavebný |
| Umiestnenie | Tichá lokalita |
| Cena za jednotku | 4 912,64 CZK / m2 |
| Číslo inzerátu | 1008936 |
|---|---|
| Vlastníctvo | Osobné |
| Plocha pozemku | 973 m² |
V okolí nehnuteľnosti nájdete
Stále hľadáte to pravé?
Nastavte si strážneho psa. Ponuky vybrané na mieru dostanete súhrnne 1× denne e-mailom. S Premium profilom máte po ruke rovno 5 strážcov a keď sa niečo objaví, informujú vás obratom.











