
Predaj domu 3+kk • 93 m² bez realitkyVáclava Babky, Olomouc - Týneček, Olomoucký kraj
Nízkoenergetický řadový dům se zahradou – Olomouc, Týneček
Jako přímý majitel nabízím k prodeji krajní sekci řadového domu, která svou dispozicí a komfortem odpovídá prostornému jednopodlažnímu bytu 3+kk. Tento dům je starý pouhých 1,5 roku a byl obýván cca 1 rok – je tedy ve stavu nové stavby, navíc s již dokončenými interiéry a zahradou. Nejedná se o běžnou stavbu, ale o dům postavený s důrazem na maximální udržitelnost, životnost a minimální provozní náklady.
📍 Lokalita: Klidná oáza s městem za zády
Dům se nachází v lukrativní a tiché části Olomouc – Týneček.
• Skvělá dostupnost: Do centra Olomouce se dostanete za 7 minut autem.
• Aktivní život: Pouhých 5 minut od moderního komplexu Nutrend World.
• Soukromí: Samostatný vchod a zahrada v rovině. Vlastní parkovací místo.
🏠 Interiér a nadstandardní vybavení
Tento dům byl budován s důrazem na kvalitu:
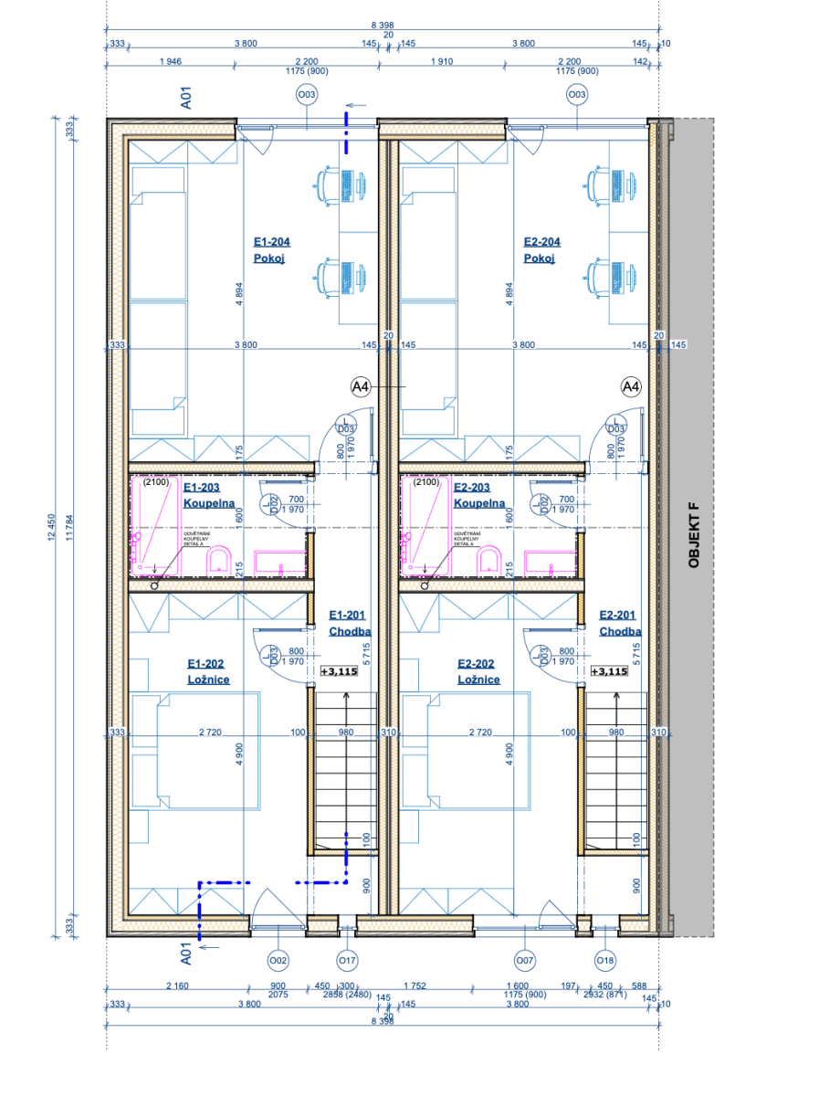
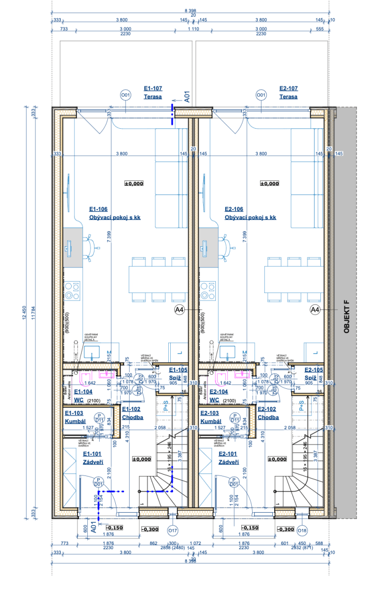
• Užitná plocha: 85 m² + 9 m² terasa s markýzou.
• Podlahy: V celém domě (kromě koupelen a zádveří) jsou položeny dřevolaminátové podlahy, které interiéru dodávají teplo a styl.
• Kuchyně: Moderní kuchyňská linka na míru včetně kompletní sady spotřebičů a lednice.
• Koupelny: V domě najdete 2 koupelny – hlavní s vanou pro relaxaci a druhou samostatnou s toaletou a umyvadlem.
• Osvětlení: Moderní svítidla a lustry instalované po celém domě.
• Částečné extra vybavení v ceně: Téměř nový, pohodlný a praktický gauč, sada skříní v pokoji a praktický nábytek v zádveří (botník, skříň).
🌿 Zahrada a úložné prostory
Vlastní rovinatá zahrada o výměře 116 m² :
• Zahradní domek: Praktický bonus pro uložení zahradního nábytku, nářadí, kol nebo sezónních věcí.
• Terasa: 9 m² prostoru pro venkovní stolování. Vybavena elektrickou markýzou pro příjemný stín během letních dnů.
• Parkování: Vlastní místo přímo před domem.
☀️ Technologie a úspory
Dům je navržen jako nízkoenergetický, s technologií Thriftybuild a využitím obnovitelných materiálů. Hlavní izolaci tvoří foukaná celulóza Climatizer Plus, která má unikátní schopnost v létě udržet v interiéru příjemný chlad a v zimě nepustit teplo ven.
• Energetická efektivita: Náklady na vytápění jsou srovnatelné s pasivními domy.
• Vytápění: Komfortní přímotopné konvektory (díky špičkové izolaci velmi úsporné).
• Ohřev vody: Bojler napojený na vlastní fotovoltaické panely. Solární panely: Instalovány pro efektivní ohřev vody.
• Okna: Kvalitní trojskla pro dokonalý tepelný i akustický komfort.
Hlavní benefity:
• Krajní dům (soused pouze z jedné strany)
• Nadstandardní materiály (dřevo, moderní sanita)
• Nízké měsíční náklady díky moderním technologiím a solárnímu ohřevu
• Extra úložný prostor v zahradním domku
• Ihned k nastěhování bez dalších investic
• Udržitelnost = ekologická konstrukce Thriftybuild.
• Stav novostavby = bez nutnosti jakýchkoliv investic.
Cena: 8.999.000 Kč
Tento dům kombinuje svobodu vlastního pozemku s bezúdržbovostí moderního bytu. Přijďte se podívat osobně!
Parametre nehnuteľnosti
| Dostupné od | 29. 3. 2026 |
|---|---|
| Konštrukcia budovy | Tehla |
| Vybavené | Čiastočne |
| Nízkoenergetická | Áno |
| PENB | A - Mimoriadne úsporné |
| Úžitková plocha | 93 m² |
| Cena za jednotku | 96 763 CZK / m2 |
| Stav | Novostavba |
|---|---|
| Dispozícia | 3+kk |
| Číslo inzerátu | 1006834 |
| Vlastníctvo | Osobné |
| Poloha domu | Radovka |
| Plocha pozemku | 168 m² |
Čo táto nehnuteľnosť ponúka?
| Parkovanie | |
| Terasa 9 m² |
| MHD 10 minút pešo |
V okolí nehnuteľnosti nájdete
Stále hľadáte to pravé?
Nastavte si strážneho psa. Ponuky vybrané na mieru dostanete súhrnne 1× denne e-mailom. S Premium profilom máte po ruke rovno 5 strážcov a keď sa niečo objaví, informujú vás obratom.


















