
Predaj bytu 1+1 • 32 m² bez realitkyKoloniestr. 147 Berlin Gesundbrunnen Berlin 13357
Koloniestr. 147 Berlin Gesundbrunnen Berlin 13357MHD 2 minúty pešo • VýťahCentrálny výber: poloha priamo v centre mesta alebo pokojné útočisko? Perfektné prepojenie alebo radšej raňajky na slnečnom balkóne s výhľadom do zelene? Koniec kompromisov! Tento byt má všetko.
+ Udržiavaný dom z roku 1961
+ 53 bytových jednotiek
+ Rozľahlý, zelený dvor
+ Výtah
+ Komfortná rezerva na údržbu
+ Nový vykurovací systém z roku 2025
Vďaka vynikajúcemu spojeniu s MHD a centrálnej polohe, celé centrum mesta patrí vám. Orientácia do rozľahlého a zeleného dvora zaručuje, že vám váš slnkom zalievaný byt zároveň poskytne pokojné útočisko.
+ Centrálna poloha v centre mesta
+ Vynikajúce spojenie (metro, električka)
+ Ulica U-Osloer a U-Pank pešo za 5 minút
+ 4 zastávky metra U8 do centra
+ Električkou priamo do Prenzlauer Berg
+ Nadregionálne spojenie vďaka blízkemu stanici Gesundbrunnen
+ Supermarkety a reštaurácie na dosah pešo
Byt sa predáva zariadený so zariadením, ktoré je na obrázku. K bytu patrí aj suchá pivnica.
+ 1. poschodie s výhľadom na pokojný, rozľahlý dvor
+ Priestranný slnečný balkón orientovaný na západ
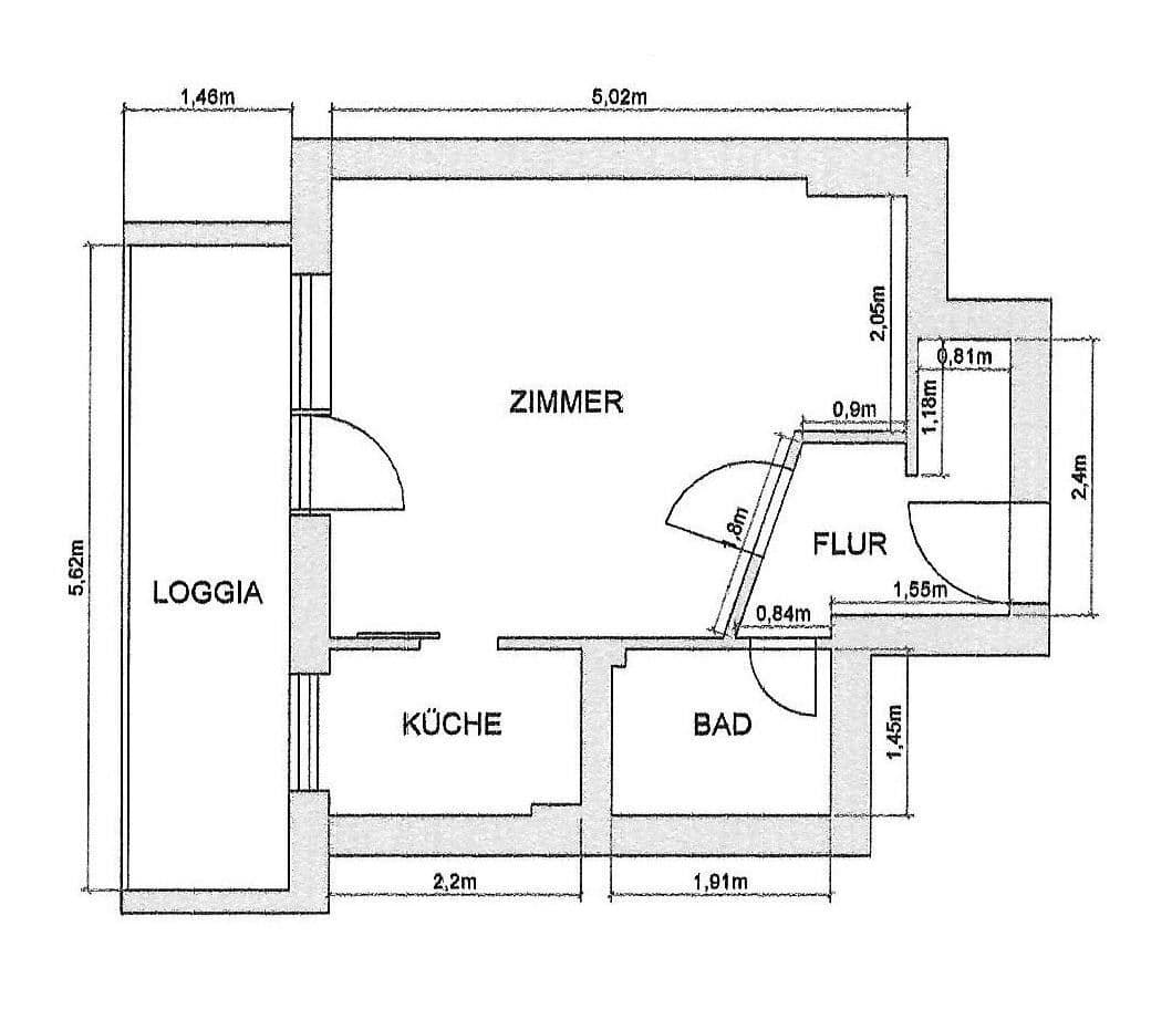
+ 1 izba, kuchyňa, kúpeľňa, chodba, skladovací priestor
+ Obkladaná kúpeľňa so vstavanou sprchou
+ Zariaďená kuchyňa s chladničkou
+ Práčka
Byt bude k dispozícii od 31.7.26. Ďalšie informácie a možné prehliadky na požiadanie.
Predaj bytu prebieha priamo od súkromného predajcu, a preto sa neúčtuje žiadna provízia makléra.
Všetky informácie sú uvedené podľa najlepšieho vedomia. Prípadné nepresnosti a vynechania si vyhradzujeme právo.
Parametre nehnuteľnosti
| Vek | Nad 50 rokov |
|---|---|
| Stav | Dobrý |
| Poschodie | 1. poschodie |
| PENB | F - veľmi nehospodárne |
| Cena za jednotku | 4 997 € / m2 |
| Dostupné od | 1. 8. 2026 |
|---|---|
| Dispozícia | 1+1 |
| Číslo inzerátu | 996276 |
| Úžitková plocha | 32 m² |
Čo táto nehnuteľnosť ponúka?
| Balkón | |
| Výťah |
| Pivnica | |
| MHD 2 minúty pešo |
V okolí nehnuteľnosti nájdete
Stále hľadáte to pravé?
Nastavte si strážneho psa. Ponuky vybrané na mieru dostanete súhrnne 1× denne e-mailom. S Premium profilom máte po ruke rovno 5 strážcov a keď sa niečo objaví, informujú vás obratom.










