
Prenájom kancelárie • 172 m² bez realitkyMannheimer Landstraße 5b, , Bádensko-Wurttembersko
Mannheimer Landstraße 5b, , Bádensko-WurttemberskoMHD 5minút pešoNehnuteľnosť ponúka atraktívnu prenajímateľnú plochu 172 m² na 1. poschodí obchodnej budovy, vhodnú pre kancelárie, ordinácie alebo seminárne priestory. Priestory sú funkčné a ponúkajú príjemnú pracovnú atmosféru, ideálnu pre podniky, ktoré hľadajú moderné a dobre rozvrhnuté kancelárske priestory v dopravne výhodnej a servisne orientovanej lokalite. K dispozícii sú aj vonkajšie parkovacie miesta pre osobné automobily. V prípade záujmu alebo ďalších otázok nás neváhajte kontaktovať.
Kancelárska plocha sa nachádza v obchodnej budove, ktorá hostí maloobchod zameraný na každodenné potreby. Priamo na mieste nájdete pekáreň, drogériu i diskont. Nehnuteľnosť sa nachádza v centre Brühl s dobrou dostupnosťou verejnej dopravy, čo zaručuje optimálny prístup k nákupným možnostiam a gastronómii.
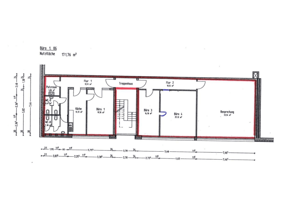
• Dve priestranné chodby, ktoré zaručujú dobrú dostupnosť jednotlivých miestností
• Štyri rôzne veľké zasadacie miestnosti, flexibilne využiteľné pre stretnutia alebo individuálne pracovné stanice
• Kuchyňa
• Samostatné WC pre dámy a pánov
• Praktická upratovacia miestnosť pre čistiace prostriedky a skladové potreby
ALDI SÜD Immobilienverwaltungs-GmbH & Co. oHG, Im Wöhr 7-9, 76437 Rastatt
Verejná obchodná spoločnosť zapísaná v Obchodnom rejstříku: Okresný súd v Mannheim – HRA 710179
Konateľná spoločnosť: ALDI SÜD Immobilienverwaltungs-GmbH, Mülheim an der Ruhr – Zápis v Obchodnom rejstříku: Okresný súd v Duisburgu – HRB33750
Výkonný riaditelia: Christof Hake, Stefan Lehmann, Holger Philippin, Jan Riemann
Ďalší spoločníci: ALDI SE & Co. komanditné spoločnosti z podnikateľskej skupiny ALDI SÜD
Parametre nehnuteľnosti
| Vek | Nad 50 rokov |
|---|---|
| Poschodie | 1. poschodie |
| Plocha kancelárie | 172 m² |
| Stav | Po rekonštrukcii |
|---|---|
| Číslo inzerátu | 992941 |
| Cena za jednotku | 9 € / m2 |
Čo táto nehnuteľnosť ponúka?
| Bezbariérový prístup |
| MHD 5 minút pešo |
V okolí nehnuteľnosti nájdete
Stále hľadáte to pravé?
Nastavte si strážneho psa. Ponuky vybrané na mieru dostanete súhrnne 1× denne e-mailom. S Premium profilom máte po ruke rovno 5 strážcov a keď sa niečo objaví, informujú vás obratom.










