
Prenájom kancelárie • 222 m² bez realitkyHamburg Eidelstedt Hamburg 22525
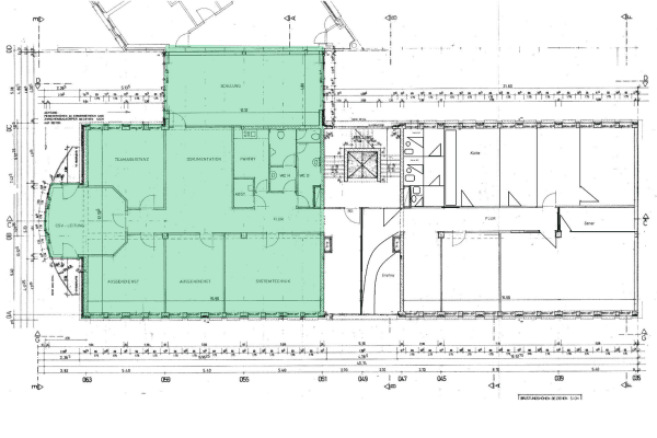
Hamburg Eidelstedt Hamburg 22525MHD 2 minúty pešo • Výťah • Parkovaniemoderný kancelársky priestor v 1. poschodí reprezentatívnej kancelárskej budovy s priamym výhľadom na S-Bahn / veľmi svetlý vďaka osvetleniu zo 3 strán / súčasne rozdelený na 6 miestností vrátane zasadacej miestnosti, archívu a serverovne / vstavaná kuchynka s umývačkou riadu / vnútorné dámske a pánske WC / elektricky ovládateľné vonkajšie žalúzie / obvodový káblový kanál pre mediálne a elektrické napájanie / podhľad so zabudovaným osvetlením / prístup do kancelárskeho priestoru prostredníctvom osobného výťahu a schodiska
centrálna poloha v obchodnej zóne Stellingen / priamo pri stanici S-Bahn Eidelstedt / v blízkosti štadióna a Barclaycard Arena / diaľnica A7 (pripojenie na Volkspark) cca 4 minúty jazdy
anthracitová kobercová podlaha / lišty a káblové kanály / integrované stropné osvetlenie / optický internet k dispozícii / + 4 parkovacie miesta po 50,00 €
Parametre nehnuteľnosti
| Vek | Nad 50 rokov |
|---|---|
| Stav | Veľmi dobrý |
| Číslo inzerátu | 971514 |
| Cena za jednotku | 0 € / m2 |
| Dostupné od | 7. 12. 2025 |
|---|---|
| Poschodie | 1. poschodie z 5 |
| Plocha kancelárie | 222 m² |
Čo táto nehnuteľnosť ponúka?
| Výťah | |
| MHD 2 minúty pešo |
| Parkovanie |
V okolí nehnuteľnosti nájdete
Stále hľadáte to pravé?
Nastavte si strážneho psa. Ponuky vybrané na mieru dostanete súhrnne 1× denne e-mailom. S Premium profilom máte po ruke rovno 5 strážcov a keď sa niečo objaví, informujú vás obratom.




















