
Predaj bytu 1+1 • 35 m² bez realitkyBerlin Prenzlauer Berg Berlin 10437
Berlin Prenzlauer Berg Berlin 10437MHD 1 minúta pešoTu je preklad textu do slovenčiny:
Kurz & knapp:
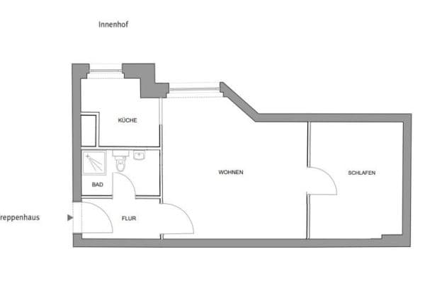
Absolútne slnečné, pokojné a neobsadené mestské bývanie (cca 35 m²) v 4. poschodí kompletne zrekonštruovaného berlínskeho domu zakladateľskej éry pri Helmholtzplatz. Byt pozostáva z veľkej izby s prístupom na úžasný balkón, ktorý sa týči nad pôvabným malým parkom, z menšej izby určené pre kuchynský kút (možno ju využiť aj ako malý spálňový priestor), udržiavaného kúpeľne, ako aj z chodby a pivničnej miestnosti. Nad ním sa nachádza podkrovný priestor (cca 41 m² brutto s šikmými stenami a nosnými trámy / cca 20-30 m² netto podľa WoFlV), ktorý sa predáva spolu a ponúka obrovský ďalší priestor pre úpravu. Súkromný predaj – požiadavky realitných maklérov nie sú vítané. Poznámka: zatiaľ tu nie je výťah.
Vybrané prednosti
• Predáva sa výhradne v balíku za cenu 309 000 € (samostatný predaj nie je možný)
- Mestský byt vo 4. poschodí s cca 35 m² obytného priestoru za 297 000 €
- Nad ním sa nachádza nedokončený priestor na podkroví s 41 m² brutto podlahovej plochy (cca 20-30 m² netto podľa WoFlV) – byt aj podkrovný priestor majú oddelené zápisy v katastri nehnuteľností a preto sú oddelene využiteľné za ďalších 12 000 €
- Priestranný uzamykateľný pivničný priestor (patriaci k 4. poschodiu)
• V nádherne zrekonštruovanom berlínskom dome zakladateľskej éry s veľmi udržiavanou schodiskovou kalatiou
• Absolútny pokoj v prostredí pripomínajúcom park – ani žiadne rušenie prítomnosťou susedov nad alebo vedľa bytu
• Najbližšia blízkosť k Helmholtzplatz (100 m) s desiatkami barov, reštaurácií, kaviarní, …
• Jasné a slnečné počas celého dňa vďaka dokonalému južnému orientovaniu
• Výhľad a veľmi obmedzené prenikanie pohľadu zvonka (vysoké súkromie)
• Atmosféra dovolenej na priestrannom balkóne s výhľadom cez panorámu Berlína
• Perfektná náhrada hotela alebo rekreačné bývanie v hlavnom meste s nízkymi prevádzkovými nákladmi
• Žiadne existujúce nájomné vzťahy, zrekonštruované a okamžite pripravené na vlastné bývanie
• Možnosť úpravy nadobúdanej a súčasne predávanej podkrovia (v súčasnosti je to, ako je to ešte v Prenzlauer Berg, len „studený“ nedokončený podkrovný priestor) – ďalšie rozšírenia podkrovia sú tiež možné (pozri oddiel Rozšírenie v priloženom expozičnom materiáli)
• Súkromný predaj – žiadny maklérsky poplatok
Nevýhody:
• Jediná vada: zatiaľ (ešte) nie je výťah – avšak v rámci spoločenstva vlastníkov sa práve diskutuje o jeho vybudovaní pre prístup k zvyšnému podkrovnému priestoru
• Priamo v Helmholtz-Kiez – len pár krokov od Helmholtzplatz
• Rôzne coworkingové priestory, office centrá a office kluby priamo pred dverami
• Nespočetné množstvo barov, reštaurácií, kaviarní, klubov, diskoték, kín v bezprostrednom okolí
• Všetky turistické atrakcie Prenzlauer Berg priamo za dverami: okrem iného Helmholtzplatz, Kollwitz-Kiez len cez ulicu, Mauerpark a Kulturbrauerei len 5 minút chôdze atď.
• Alexanderplatz je verejne prístupný iba za 6 minút metrom. Na letisko BER sa odtiaľ dostanete za 25 minút vlakovým shuttleom. Hlavnú stanicu dosiahnete priamo s tramvajou za 16 minút
• Rôzne možnosti nákupov, ako sú dva bežné obchody a jeden bio supermarket, ako aj nespočetné množstvo „Spätis“ (24-h obchody) priamo pred dverami
• Rôzne možnosti starostlivosti o deti v dome a v bezprostrednom susedstve
Ďalšie vybavenie a charakteristiky
• Perfektné usporiadanie mestského bytu vo 4. poschodí: nádherná obývacia/pracovňa, samostatná kuchynka (ktorú možno využiť aj ako oddelený spálňový priestor) ako aj priestranná kúpeľňa a praktická chodba
• Kúpeľňa: nová toaleta a umývadlo, sprcha, ohrievač uterákov, vetranie, ďalší priestor pre práčku, sušičku, police atď.; v prípade potreby môže spoľahlivý remeselný tím po dohode splniť ďalšie želania (dlažba, vaňa, ... atď.)
• Veľká izba s priestranným balkónom: veľké okná a dvere vedúce na priestranný balkón. V izbe je možnosť rôznych zariadiacich variantov (posteľ, sedačka, pracovný kút či kombinácia spálňa-sedačka a veľký jedálenský/pracovný stôl, možnosti sú neobmedzené – podľa využitia)
• Menšia izba: v klasickom usporiadaní priestor pre vstavanú kuchyňu (všetky dôležité pripojenia sú k dispozícii), veľké svetlé okno. V prípade potreby môže vzniknúť oddelený spálňový priestor a kuchynské pripojenia môžu pokračovať do obývacej izby (obytná kuchyňa, prípadne obývačka s hotelovou mini kuchyňou) – podľa využitia
• Praktická chodba s možnosťami na uloženie šatníka a regálov
• Nad ňou sa nachádza podkrovie (nedokončený „studený“ podkrovný priestor): rôzne možnosti úprav, výhľad nad mestom až k berlínskemu televíznej veži
• Vlastný uzamykateľný pivničný priestor v suteréne
• Ústredné kúrenie vo všetkých miestnostiach s klasickou termostatickou reguláciou
• Internet: mimoriadne rýchla optická sieť až do 1 Gbit/s symetricky
• Dodatočná malá súkromná záhrada v prízemí s možnosťami úschovy bicyklov a prívesov; vysoká bezpečnosť proti krádežiam vďaka 24-h policajnému dozorovaniu priamo pri dverách
Právne náležitosti & dokumentácia
Prevádzkové náklady: daň z nadobudnutia nehnuteľnosti, ako aj notárske a katastrálne poplatky hradí kupujúci. Energetický preukaz je k dispozícii na vyžiadanie. Táto dokumentácia slúži iba na prvú informáciu. Všetky informácie sú poskytované podľa najlepších vedomostí, sú nezáväzné a bez záruky. Neposkytujeme stavebné ani právne poradenstvo. Predaj v medziobchode je vyhradený.
Parametre nehnuteľnosti
| Vek | Nad 50 rokov |
|---|---|
| Dispozícia | 1+1 |
| Číslo inzerátu | 971308 |
| Úžitková plocha | 35 m² |
| Stav | Po rekonštrukcii |
|---|---|
| Poschodie | 4. poschodie z 2 |
| PENB | D - Menej hospodárne |
| Cena za jednotku | 8 486 € / m2 |
Čo táto nehnuteľnosť ponúka?
| Balkón | |
| MHD 1 minúta pešo |
| Pivnica |
V okolí nehnuteľnosti nájdete
Stále hľadáte to pravé?
Nastavte si strážneho psa. Ponuky vybrané na mieru dostanete súhrnne 1× denne e-mailom. S Premium profilom máte po ruke rovno 5 strážcov a keď sa niečo objaví, informujú vás obratom.


















