
Predaj bytu 2+1 • 50 m² bez realitkyGraefestr. 78 Berlin Kreuzberg Berlin 10967
Tento zrekonštruovaný a voľný 2-izbový byt sa nachádza v druhom nadzemnom podlaží zadnej budovy udržiavaného viacrodinného domu – priamo v žiadanej berlínskej štvrti Kreuzberg, v obľúbenom Graefekiez.
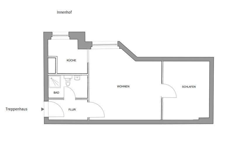
Viacrodinný dom bol v roku 2000 komplexne zrekonštruovaný a ponúka moderný životný komfort v centrálnej, mestskom prostredí. Byt disponuje obytnou plochou približne 50 m² a navyše obsahuje pivničné priestory, ktoré poskytujú dodatočný úložný priestor. Viacrodinný dom nie je vybavený výťahom.
Budova bola v uplynulých rokoch priebežne udržiavaná a nachádza sa v veľmi starostlivo zachovanom celkovom stave. V roku 2020 bola obnovená strecha. V období medzi rokmi 2021 a 2024 boli navyše komplexne zrekonštruované plynovody, vodovodné potrubia, kanalizačné vedenia aj dažďové potrubia.
Nehnuteľnosť sa nachádza v obľúbenom Graefekiez, v srdci Berlína-Kreuzberg. Táto žiadaná lokalita spája mestský životný štýl, kultúrnu rozmanitosť a uvoľnenú susedskú atmosféru. Idylický Landwehrkanal ako aj nedaleký Volkspark Hasenheide ponúkajú ideálne miesta na prechádzky, šport alebo príjemné chvíle v prírode.
V bezprostrednom okolí sa nachádza všetko, čo spríjemňuje každodenný život: početné kaviarne, reštaurácie a bary vytvárajú živé mestské prostredie, zatiaľ čo supermarkety ako Bio Company, Edeka a Netto sú pohodlne dostupné pešo. Rovnako aj lekárne, pekárne, butiky a malé obchody v štvrti zabezpečujú vynikajúcu miestnu zásobu.
Doprava verejnou dopravou je vynikajúca: stanice metra „Schönleinstraße“ (U8) a „Südstern“ (U7) sú dostupné pešo za pár minút a ponúkajú rýchle spojenie do všetkých častí mesta.
Graefekiez je považovaný za jednu z najžiadanejších rezidenčných lokalít Kreuzbergu – charakterizovanú starostlivo zrekonštruovanými historickými budovami, vysokou hodnotou pre voľný čas a kreatívnou, otvorenou susedskou komunitou.
Voľný byt bol v októbri 2025 komplexne zrekonštruovaný a predstavuje sa v modernom stave. V rámci prác bola kompletná elektrická inštalácia obnovená, bol položený parket z masívneho dreva vo vzore rybieho kostra, boli prekreslené steny, inštalované moderné loft dvere a kúpeľňa premenená na súčasný štandard.
Impressum
TRIA Invest GmbH
Schorlemmerstr. 2
04155 Lipsko
Kontakt:
Telefón: +49 176 4185678 2
E-mail: info@tria-invest.de
Právna forma: spoločnosť s ručením obmedzeným
Riaditelia: Ngoc Bui, Viet Hoang
Registrový súd: Okresný súd v Lipsku
Registračné číslo: HRB 38835
Parametre nehnuteľnosti
| Vek | Nad 50 rokov |
|---|---|
| Stav | Po rekonštrukcii |
| Poschodie | 2. poschodie z 5 |
| PENB | B - Veľmi úsporné |
| Cena za jednotku | 6 700 € / m2 |
| Dostupné od | 7. 12. 2025 |
|---|---|
| Dispozícia | 2+1 |
| Číslo inzerátu | 971244 |
| Úžitková plocha | 50 m² |
Čo táto nehnuteľnosť ponúka?
| Pivnica |
| MHD 1 minúta pešo |
V okolí nehnuteľnosti nájdete
Stále hľadáte to pravé?
Nastavte si strážneho psa. Ponuky vybrané na mieru dostanete súhrnne 1× denne e-mailom. S Premium profilom máte po ruke rovno 5 strážcov a keď sa niečo objaví, informujú vás obratom.



















