Prenájom nebytového priestoru • 160 m² bez realitkyWalter-Gropius-Str. 3, , Bádensko-Wurttembersko
Walter-Gropius-Str. 3, , Bádensko-WurttemberskoMHD 1 minúta pešoMesačné nájomné850 €
+ Poplatky za služby200 €
+ Vratná kaucia2 000 €
Preložené AI
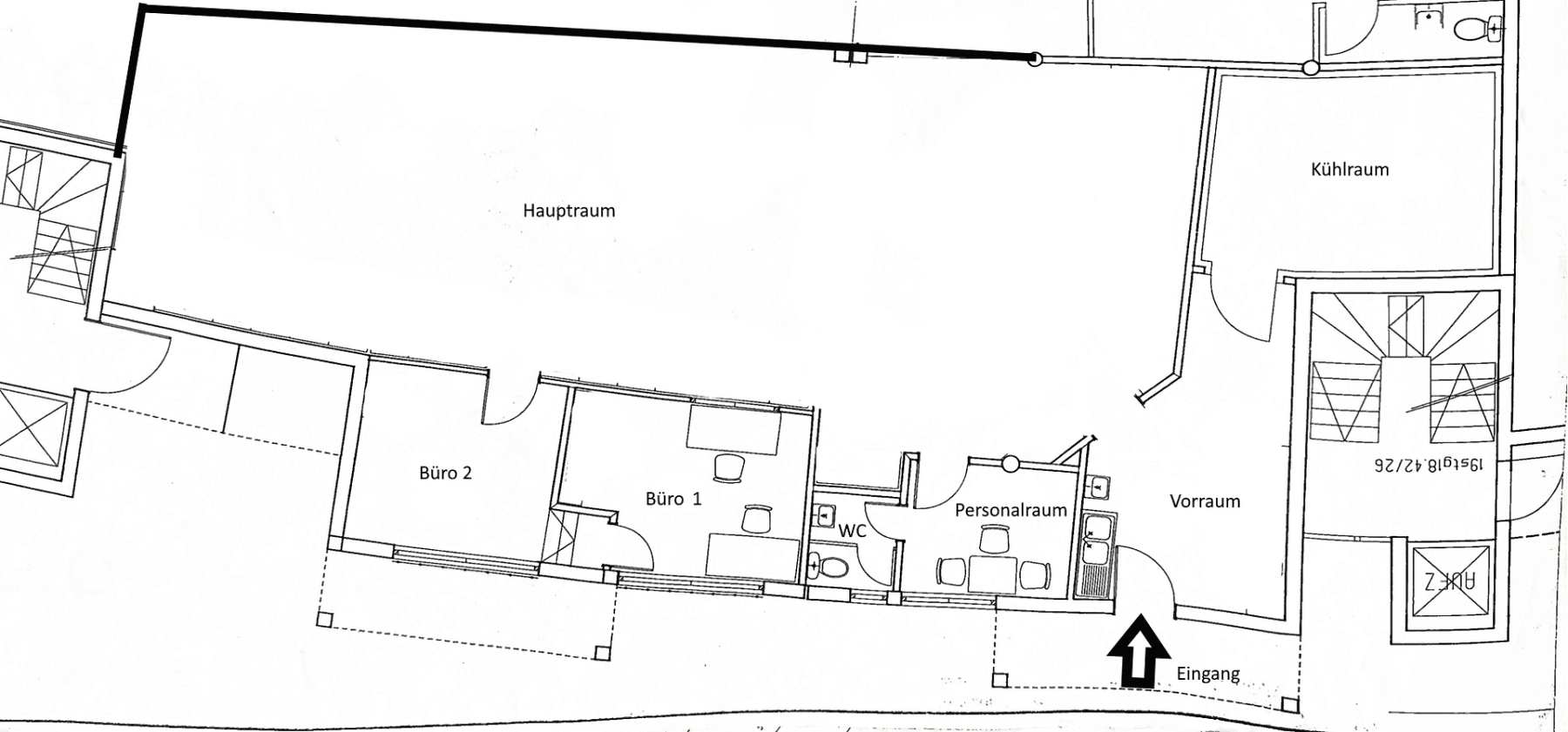
Sklad a kancelária
160 m²
S WC
Priestor susedí s bytmi, preto nie je možné používať hlučné stroje.
Hlavné vchodové dvere: 82 cm šírka, 205 cm výška
Pri komerčnom využití + 19 % DPH.
Parametre nehnuteľnosti
| Vek | Nad 50 rokov |
|---|---|
| Číslo inzerátu | 970351 |
| Cena za jednotku | 5 € / m2 |
| Dostupné od | 7. 12. 2025 |
|---|---|
| Plocha nebytového priestoru | 160 m² |
Čo táto nehnuteľnosť ponúka?
| MHD 1 minúta pešo |
V okolí nehnuteľnosti nájdete
MHDWalter-Gropius-Platz
🚶 116 m (1 min)
PoštaCiao Agip
🚶 822 m (10 min)
ObchodMarx
🚶 451 m (5 min)
BankaKreissparkasse Reutlingen
🚘 1 895 m (6 min)
Reštaurácia
🚶 134 m (2 min)
LekáreňHohbuch-Apotheke
🚘 899 m (4 min)
ŠkolaBodelschwinghschule
🚶 485 m (6 min)
Materská školaStädtisches Kinderhaus Pestalozzistraße 90/92
🚶 220 m (3 min)
ŠportoviskoPraxis Birgel Physio Wellness Sport
🚶 50 m (1 min)
Ihrisko
🚶 153 m (2 min)
Vzdialenosť k:
Mesačné nájomné850 €
+ Poplatky za služby200 €
+ Vratná kaucia2 000 €
Stále hľadáte to pravé?
Nastavte si strážneho psa. Ponuky vybrané na mieru dostanete súhrnne 1× denne e-mailom. S Premium profilom máte po ruke rovno 5 strážcov a keď sa niečo objaví, informujú vás obratom.














