Prenájom nebytového priestoru • 862 m² bez realitky, Bádensko-Wurttembersko
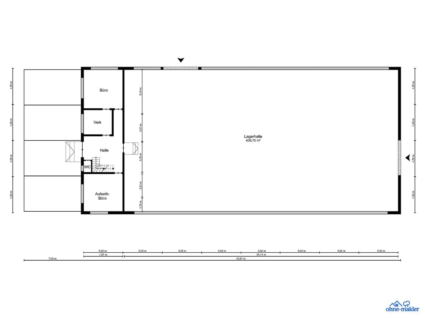
, Bádensko-WurttemberskoMHD do minúty pešoPri tomto objekte ide o dve všestranne využiteľné haly. Ideálne pre výrobu, skladovanie a výstavu alebo predaj.
Väčšia hala obsahuje skladovaciu plochu cca 630 m² a priestory pre kanceláriu a oddych o rozlohe cca 40 m².
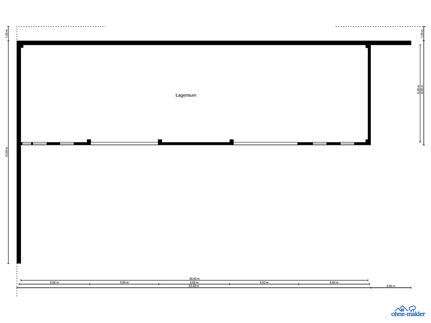
Menšia hala na zadnej strane pozemku pozostáva z využiteľnej plochy cca 162 m².
Časti haly je možné prenajímať spolu alebo samostatne.
Vonkajšie plochy sú čiastočne prenajaté.
Prenajímateľský objekt sa nachádza v obci Ofterdingen, v zmiešanom území. Ofterdingen je obec v okrese Tübingen v Baden-Württembursku.
Okolie: Cesta prechádza zmiešanou obytnou a priemyselnou zónou. V blízkosti sa nachádzajú malé podniky, ako karosériová opraváreň, tlačiareň, obchod s drevnatým palivom a pizzeria, priamo v susedstve objektu.
Dopravné spojenie: Cesta je ľahko dostupná a ponúka pokojný prístup. Maximálna rýchlosť je obmedzená, čo prispieva k bezpečnosti a kvalite lokality.
Geografická poloha: Ofterdingen sa nachádza južne od Tübingen a je zasadený do pôvabnej krajiny údolia rieky Steinlach, s dobrou dostupnosťou na B27 smerom na Tübingen a Balingen.
Jedná sa o dve neohriate haly. Kancelárske priestory môžu byť na požiadanie vykurované elektrickým prúdom.
Energetický preukaz je vo fáze prípravy a bude predložený pri obhliadke!
Priestory v hornom poschodí kancelárskej budovy je možné na požiadanie prenajať dodatočne, sú vhodné napr. ako bydlisko prevádzkovateľa.
Uvedená cena prenájmu je uvádzaná bez príplatkov a bez 19 % DPH z celkovej ceny prenájmu (neohriaty prenájom + príplatky).
Parametre nehnuteľnosti
| Vek | Nad 50 rokov |
|---|---|
| Číslo inzerátu | 968043 |
| Cena za jednotku | 4 € / m2 |
| Stav | Dobrý |
|---|---|
| Plocha nebytového priestoru | 862 m² |
Čo táto nehnuteľnosť ponúka?
| MHD 0 minút pešo |
V okolí nehnuteľnosti nájdete
Stále hľadáte to pravé?
Nastavte si strážneho psa. Ponuky vybrané na mieru dostanete súhrnne 1× denne e-mailom. S Premium profilom máte po ruke rovno 5 strážcov a keď sa niečo objaví, informujú vás obratom.














