Prenájom bytu 2+1 • 72 m² bez realitky, Meklenbursko-Predpomoransko
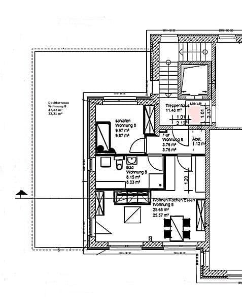
, Meklenbursko-PredpomoranskoMHD 2 minúty pešo • Výťah • ParkovanieERSTBEZUG / BEZ PROVÍZIE: Jedinečný 2-izbový byt so špeciálnou 47 m² strešnou terasou – s príslušenstvom, v pokojných končinách a v blízkosti vlakovej stanice
Moderná viacrodinná budova so 8 bytmi, výťahom a príslušenstvom
Náš dom je novostavený (2025) a postavený podľa štandardu KFW55.
Tento výnimočný 2-izbový byt je najmä vhodný pre ľudí, ktorí si cenia pokoj, veľký vonkajší priestor a niečo výnimočné.
Hlavnou atrakciou tohto úžasného bytu je jedinečná, obrovská strešná terasa s rozlohou približne 47 m²! (Ostatní obyvatelia bytov nemajú k tejto terase prístup.)
Bytová plocha je približne 72 m² (vnútorná časť asi 48 m² plus strešná terasa podľa WoFlV).
Vybavenie vyššej triedy:
- Dizajnová podlaha
- Kúpeľňa s prirodzeným denným svetlom, sklenenou sprchou a vaňou
- Výťah
- Obrovská 47 m² strešná terasa
- Podlahové kúrenie
- Elektrické vonkajšie žalúzie okolo okien orientovaných do vnútorného dvora pre väčšie súkromie
Ďalšie výhody:
- Novostavba s prvým nasťahovaním!
- BEZ PROVÍZIE: priama prenájom od súkromných vlastníkov
- NÍZKA KAUTÍJA: 2 namiesto 3 čistých mesačných nájmov ako kaucia
- nízke prevádzkové náklady
- nízka energetická spotreba vďaka štruktúre KFW55
- Zdroj energie: tepelná čerpadlo
Viacrodinná budova so 8 bytovými jednotkami a príslušenstvom sa nachádza v pokojnej obytné štvrti v bočnej ulici, obklopená rodinnými domami s malým priepustným cestným ruchom.
V blízkosti nájdete:
- diskontný obchod (450 m pešo)
- pekáreň
- Raiffeisen banka
- vlakovú stanicu (550 m pešo)
- lekáreň
- lekárov a veterinárov
- príslušenstvo ku každému bytu: kryté parkovacie miesto s vlastnou skladovacou/pracovňou
Okrem toho sú na dvore prispôsobené parkovacie miesta pre osoby so zdravotným postihnutím a návštevné parkoviská.
Prehliadky - žiadosti len v prípade vážneho záujmu!
Parametre nehnuteľnosti
| Vek | Nad 50 rokov |
|---|---|
| Dispozícia | 2+1 |
| Číslo inzerátu | 964613 |
| Cena za jednotku | 13 € / m2 |
| Stav | Novostavba |
|---|---|
| Poschodie | 2. poschodie |
| Úžitková plocha | 72 m² |
Čo táto nehnuteľnosť ponúka?
| Balkón | |
| Parkovanie |
| Výťah | |
| MHD 2 minúty pešo |
V okolí nehnuteľnosti nájdete
Stále hľadáte to pravé?
Nastavte si strážneho psa. Ponuky vybrané na mieru dostanete súhrnne 1× denne e-mailom. S Premium profilom máte po ruke rovno 5 strážcov a keď sa niečo objaví, informujú vás obratom.






















