
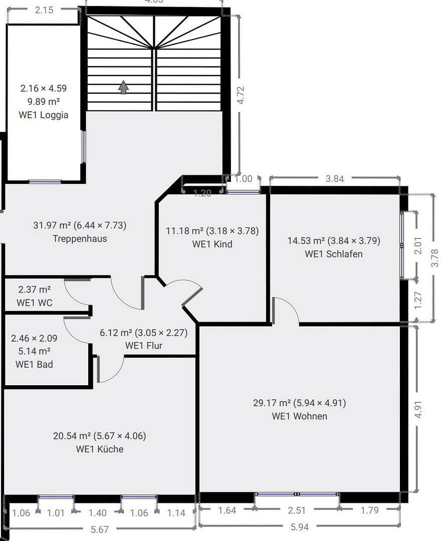
Predaj bytu 3+1 • 90 m² bez realitky, Hesensko
, HesenskoMHD 2 minúty pešoNa predaj je pekný a svetlý trojizbový byt (v 2. poschodí) v Schöneck-Büdesheim v dome so 6 bydliskami.
Byt je momentálne prenajatý, no môže byť krátkodobo odovzdaný neobsadený a je veľmi vhodný pre vlastné bývanie. Aktuálna nájomná činí 700 € mesačne – existuje vysoký potenciál na zvýšenie nájomného, keďže miestne bežné nájomné je okolo 11,50 – 12,00 € za m².
Prosíme iba záujemcov, ktorí majú zabezpečené financovanie, aby nás kontaktovali, t. j. už prebehli príslušné rozhovory s bankou alebo finančným poradcom a kreditná bonitá/netopríjem je dostatočný na financovanie nehnuteľnosti.
Bez provízie – priamo od majiteľa!
Dopyty od maklérov nie sú vítané a nebudú zodpovedané!
Schöneck sa nachádza pri železničnej trati Frankfurt/M, Bad Vilbel – Stockheim. Stanica Büdesheim je pešo dostupná do 5 minút. Vzdialenosť do centra Frankfurtu je približne 15 km.
Základná škola a materská škola sú vzdialené len 300-400 m. Mnoho obchodov pre každodenné potreby, rôzne supermarkety, 5 mäsiarstiev, 4 pekární, sociálne zariadenia ako sú materské školy a školy, lekári, a tiež pestrá ponuka voľnočasových a kultúrnych aktivít ponúka ambiciózna a živá obec Schöneck.
- Vybavená kuchyňa
- Parketová podlaha/laminát
- Balkón
- Hosťovské WC
- Podkrovia
Prosím, žiadne dopyty od maklérov!
Parametre nehnuteľnosti
| Vek | Nad 50 rokov |
|---|---|
| Dispozícia | 3+1 |
| Číslo inzerátu | 963772 |
| Úžitková plocha | 90 m² |
| Stav | Dobrý |
|---|---|
| Poschodie | 2. poschodie z 3 |
| PENB | D - Menej hospodárne |
| Cena za jednotku | 2 778 € / m2 |
Čo táto nehnuteľnosť ponúka?
| Balkón |
| MHD 2 minúty pešo |
V okolí nehnuteľnosti nájdete
Stále hľadáte to pravé?
Nastavte si strážneho psa. Ponuky vybrané na mieru dostanete súhrnne 1× denne e-mailom. S Premium profilom máte po ruke rovno 5 strážcov a keď sa niečo objaví, informujú vás obratom.













