
Prenájom bytu 2+1 • 41 m² bez realitkyLutherstr.6 Magedburg Sudenburg Sachsen-Anhalt 39882
Lutherstr.6 Magedburg Sudenburg Sachsen-Anhalt 39882MHD 6minút pešoTento skvelý 2-izbový byt bol čerstvo zrenovovaný a práve sa kompletne zariaduje.
Takto sa môžete napríklad ako mladý pár nasťahovať priamo do zariadeného hniezda, bez toho, aby ste sa museli starať o vlastný nábytok.
Aj pre tých, ktorí žijú sami, môže byť tento byt skvelým štartom.
Fotografie komplet zariadeného bytu budú čoskoro k dispozícii. Prvé dojmy už môžete z obrázkov odčítať.
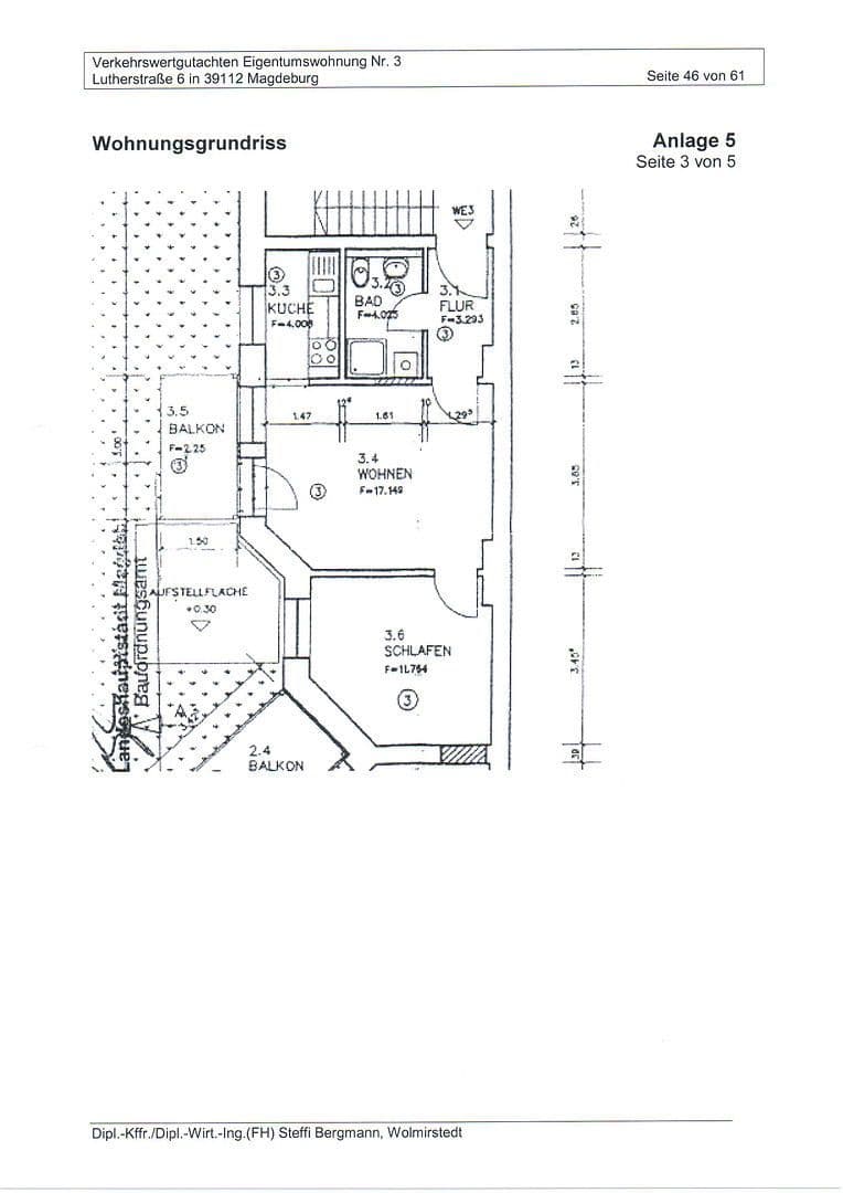
Kúpeľňa je vybavená zrkadlovou skriňou, sprchou a práčkou.
Obývacia izba sa práve zariaduje jedálenským stolom, pohovkou, skriňou a regálmi. Odtiaľ sa priamo dostanete na svoj vlastný balkón.
V zabudovanej kuchyni sa samozrejme nachádza rúra, chladnička, ako aj digestoár.
Spálňa má manželskú posteľ formátu king-size a ešte dostane aj vhodné skrine na oblečenie.
Byt sa nachádza v hornom prízemí zadnej budovy v pokojnej obytné štvrti, takže nie je počuť žiadny pouličný ruch ani iné zvuky z ulice.
V bezprostrednej blízkosti nájdete všetko potrebné na každodenný život (supermarket, diskont, lekáreň, základnú školu, lekára, fitness centrum). Autobus a električka sú dostupné do 10 minút.
Keďže byt je práve zariadený, fotografie ešte nezodpovedajú finálnemu stavu. V plánovom zobrazení je približne vidieť, ako to nakoniec vyzerá.
Parametre nehnuteľnosti
| Vek | Nad 50 rokov |
|---|---|
| Stav | Po rekonštrukcii |
| Číslo inzerátu | 955147 |
| Cena za jednotku | 11 € / m2 |
| Dostupné od | 8. 11. 2025 |
|---|---|
| Dispozícia | 2+1 |
| Úžitková plocha | 41 m² |
Čo táto nehnuteľnosť ponúka?
| Balkón | |
| MHD 6 minút pešo |
| Pivnica |
V okolí nehnuteľnosti nájdete
Stále hľadáte to pravé?
Nastavte si strážneho psa. Ponuky vybrané na mieru dostanete súhrnne 1× denne e-mailom. S Premium profilom máte po ruke rovno 5 strážcov a keď sa niečo objaví, informujú vás obratom.



















